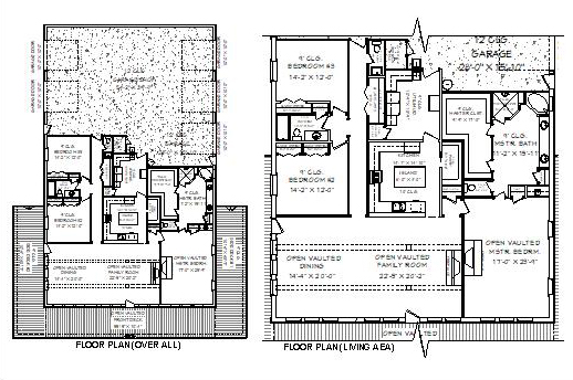
BRN 04G-1 STORY, 3 BEDROOM, 2 1/2 BATH 2,669 SQFT, BARDOMINIUMMR. CUBENov 13, 20231 min readUpdated: Feb 19, 2024Rated NaN out of 5 stars.We also offer drafting & design services for modification or if you have your own plans. We Create The Dream, You Live!DRAFTING & DESIGN SERVICESMORE DETAILS & PURCHASE PLANS
Comments