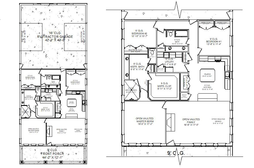
HOUSE PLAN BRN 07G-1 STORY, 3 BEDROOMS, 2 BATH 2,068 SQFT, FARMHOUSE STYLE BARDOMINIUMMR. CUBENov 30, 20231 min readUpdated: Jan 9, 2024Rated NaN out of 5 stars.We Design The Dream, You live It!PURCHASE AND MORE DETAILSEXTERIOR FRONT RIGHT RENDERINGEXTERIOR FRONT RENDERINGEXTEIOR FRONT RIGHT RENDERINGEXTERIOR RIGHT RENDERINGEXTERIOR REAR RIGHT RENDERINGEXTERIOR REAR LEFT RENDERINGEXTERIOR LEFT RENDERINGEXTERIOR FRONT LEFT RENDERINGFLOOR PLANS (OVERALL & LIVING)FLOOR PLAN ROOM SIZESDRAWINGS INCLUDE
Comments