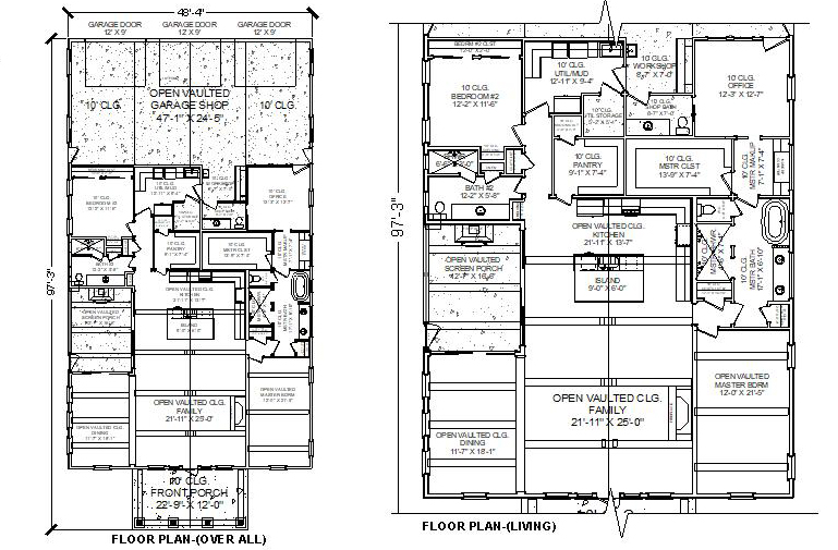
BRN 19-1 STORY, 2 BEDROOMS, OFFICE.2.5 BATH, 2,569 SQFT, STYLE BARDOMINIUM
- MR. CUBE

- Dec 9, 2023
- 1 min read
Updated: Jan 23, 2024
As well as pre-designed house plans, we also provide drafting & design services for new construction & remodel projects, both residential & commercial plans.












































Comments