CHURCH PLAN-CHR 08 1 STORY, 8,395 SQFT $1,260.00
- MR. CUBE

- May 10, 2025
- 1 min read
Updated: Jun 3, 2025
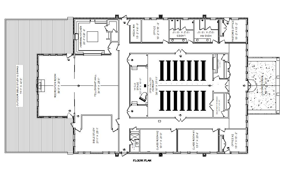
Discover the perfect church plan for your congregation with CHR 08. Explore a 1-story, 8,395 sqft design that meets your needs and vision.
As well as pre-designed church plans, we also provide architectural drafting & design services for new construction & remodel projects, both residential & commercial plans.






























Comments