top of page

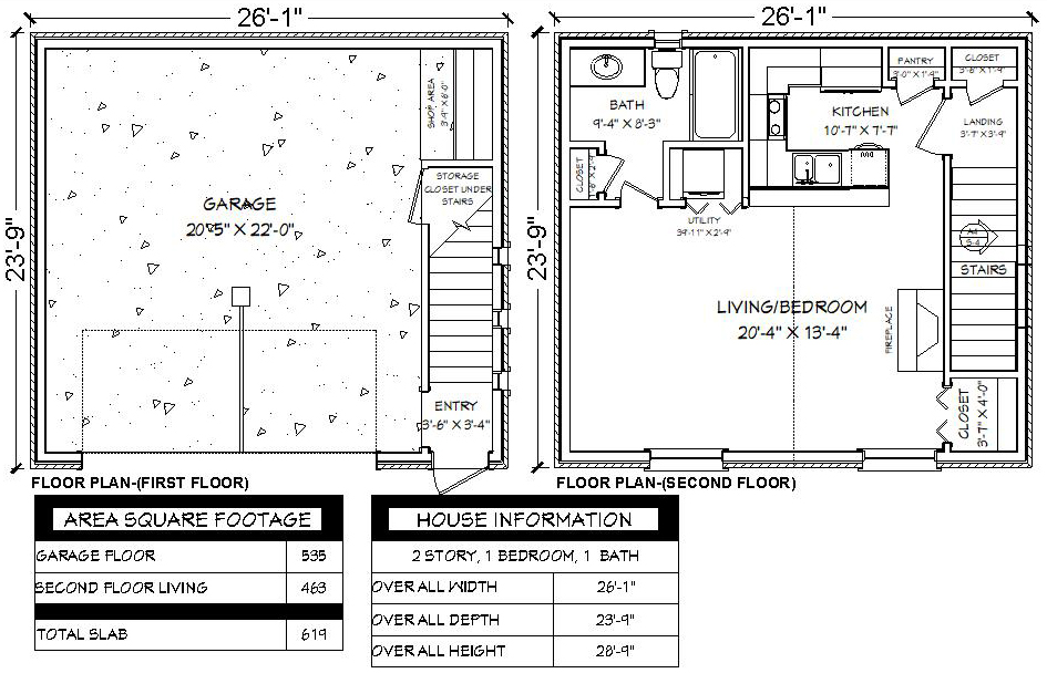
GAAP 229, 2 STORY, 1 BEDROOM, 1 BATH, 463 SQFT. GARAGE APARTMENT.

We Design The Dream, You Live It!




Comments

Rated 0 out of 5 stars.
No ratings yet

Add a rating
bottom of page