top of page

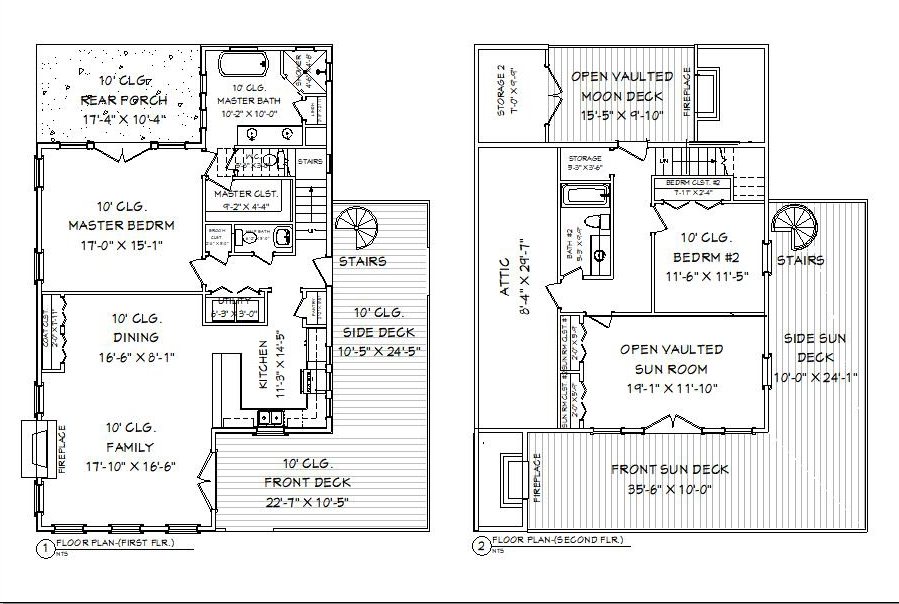
CD 218-2 STORY, 2 BEDROOMS, 2.5 BATH, 2,061 SQFT.COTTAGE

We Design The Dream, You Live It!




Comments

Rated 0 out of 5 stars.
No ratings yet

Add a rating
bottom of page