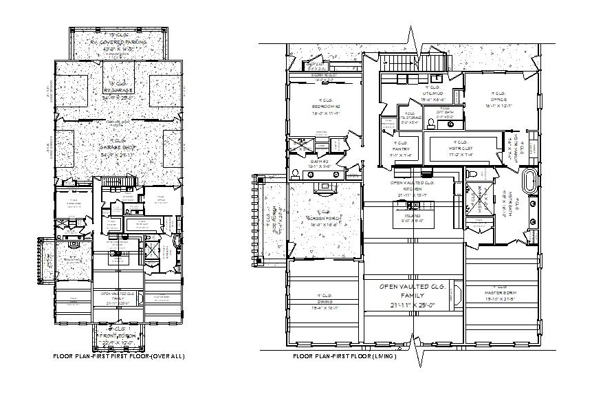
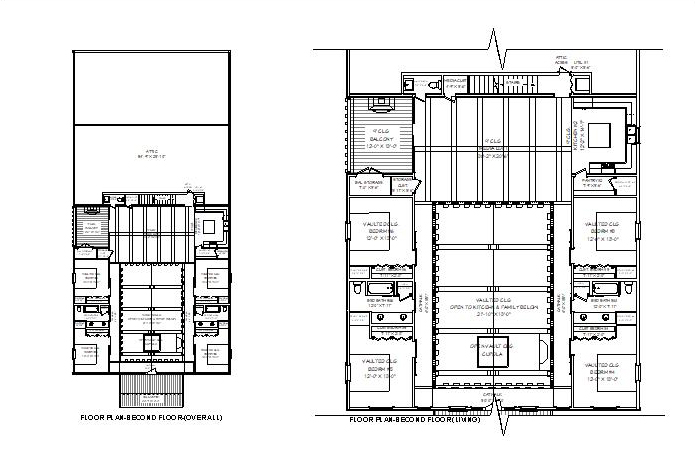
HOUSE PLAN BRN 20- 2 STORY, 6 BEDROOMS, OFFICE 4 & 2 HALF BATHS, 5,379 SQFT.
- MR. CUBE

- Dec 19, 2025
- 1 min read
As well as pre-designed house plans, we also provide drafting & design services for new construction & remodel projects, both residential & commercial plans.












Comments