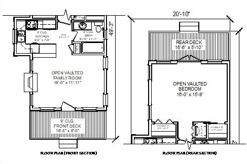
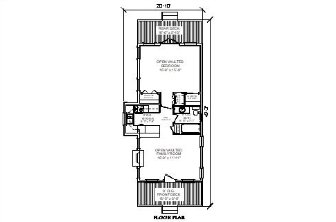
TNY 01-1 STORY, 1 BEDROOM, 1 BATH, 595 SQFT., STYLE MODERN MR. CUBEFeb 23, 20181 min readUpdated: Dec 17, 2023Rated NaN out of 5 stars.We Design The Dream, You Live It!PURCHASE OR MORE DETAILS
Exploring the Journey of Building Your First Dream Home Bardominium with Cube Architectural Drafting & Design Services
Comments